Schule machen
Neue pädagogische Konzepte mit maroden Schulgebäuden in Einklang zu bringen, gehört momentan zu den großen Herausforderungen bei Bildungsbauten. Das gilt besonders für Italien, wo der desolate Zustand der italienischen Kindergärten und Schulen mittlerweile zum medialen Thema geworden ist. Die Gründe dafür sind wie so oft in Budgetkürzungen und einem damit einhergehenden Sanierungsstau zu finden. Umso beachtlicher ist der Entwurf für die Enrico-Fermi-Schule im Südosten von Turin, bei der die beiden jungen italienischen ArchitektInnen Alberto Bottero und Simona Della Rocca von BDR bureau einen Bestandsbau aus den 1960-Jahren in eine offene, 5579 Quadratmeter große Lernlandschaft verwandelt haben.
Zurück geht das Projekt auf die Initiative "Torino fa scuola", die 2015 in Turin ins Leben gerufen wurde und die Sanierung öffentlicher Schulgebäude zum Ziel hat. Neben Studien zum Zustand der jeweiligen Bauten und dem Entwickeln neuer pädagogischer Konzepte lobt die Initiative auch konkrete Architekturwettbewerbe aus und wird dabei finanziell vom gemeinnützigen Forschungsinstitut "Compagnia di San Paolo" und der 1966 von der Unternehmerfamilie Agnelli gegründeten Agnelli-Stiftung unterstützt. Dafür untersuchte "Torino fa scuola" unter anderem zwei Schultypologien, die jeweils im 19. Jahrhundert und in der zweiten Hälfte des 20. Jahrhunderts errichtet wurden. Letztere diente in Form der Enrico-Fermi-Schule als Vorlage für einen 2016 ausgelobten Architekturwettbewerb, den BDR bureau für sich entscheiden konnten.
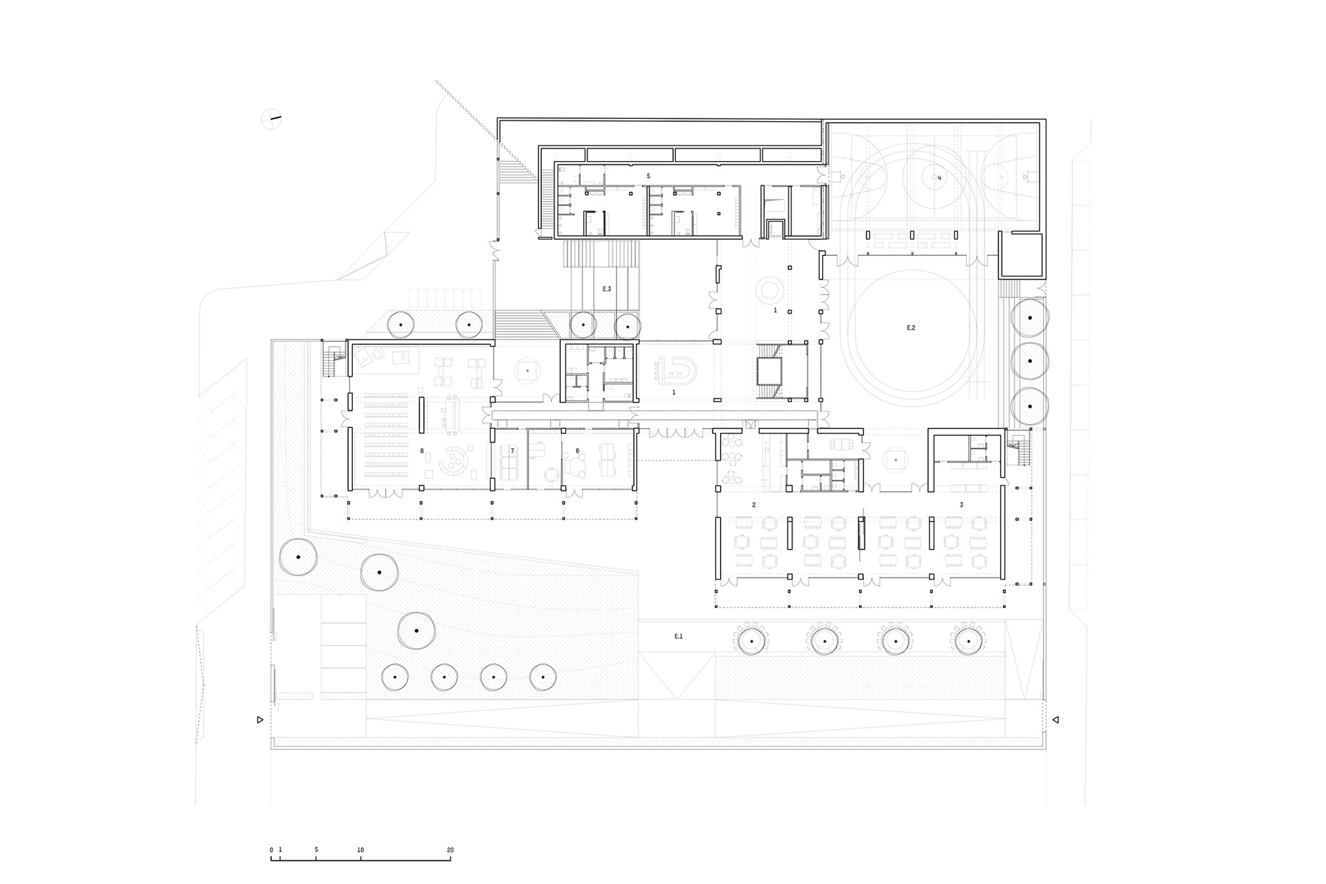
"Wir wollten ein Projekt, das mit dem bestehenden Gebäude in einen Dialog tritt und gleichzeitig seine Funktionalität in Frage stellt. Neue räumliche Elemente, verschiedene Transparenzen und Ergänzungen interpretieren die ursprüngliche Struktur, mit dem Ziel, die Schule für die Stadt zu öffnen", sagen Alberto Bottero und Simona Della Rocca über das Sanierungskonzept. Dafür verfolgten sie zwei Strategien: eine Freilegung der Gebäudestruktur und die Implementierung einer offenen Lernlandschaft, die zudem mit der Nachbarschaft verknüpft ist. Der dreigeschossige Bau wurde deshalb auf sein Stahlbetonskelett zurückgebaut und anschließend statisch und energetisch ertüchtigt. Hinzu kamen bodentiefe Fenster, die sich zu den neu hinzugefügten Stahlbalkonen öffnen. Letztere legen sich als neue Raumschichten um den Bestand und dienen als Erweiterung des Schulraums, der sich dadurch stärker mit der Nachbarschaft verzahnt. Zudem sorgen sie als sommerlicher Wärmeschutz für eine Verschattung der Klassenzimmer.
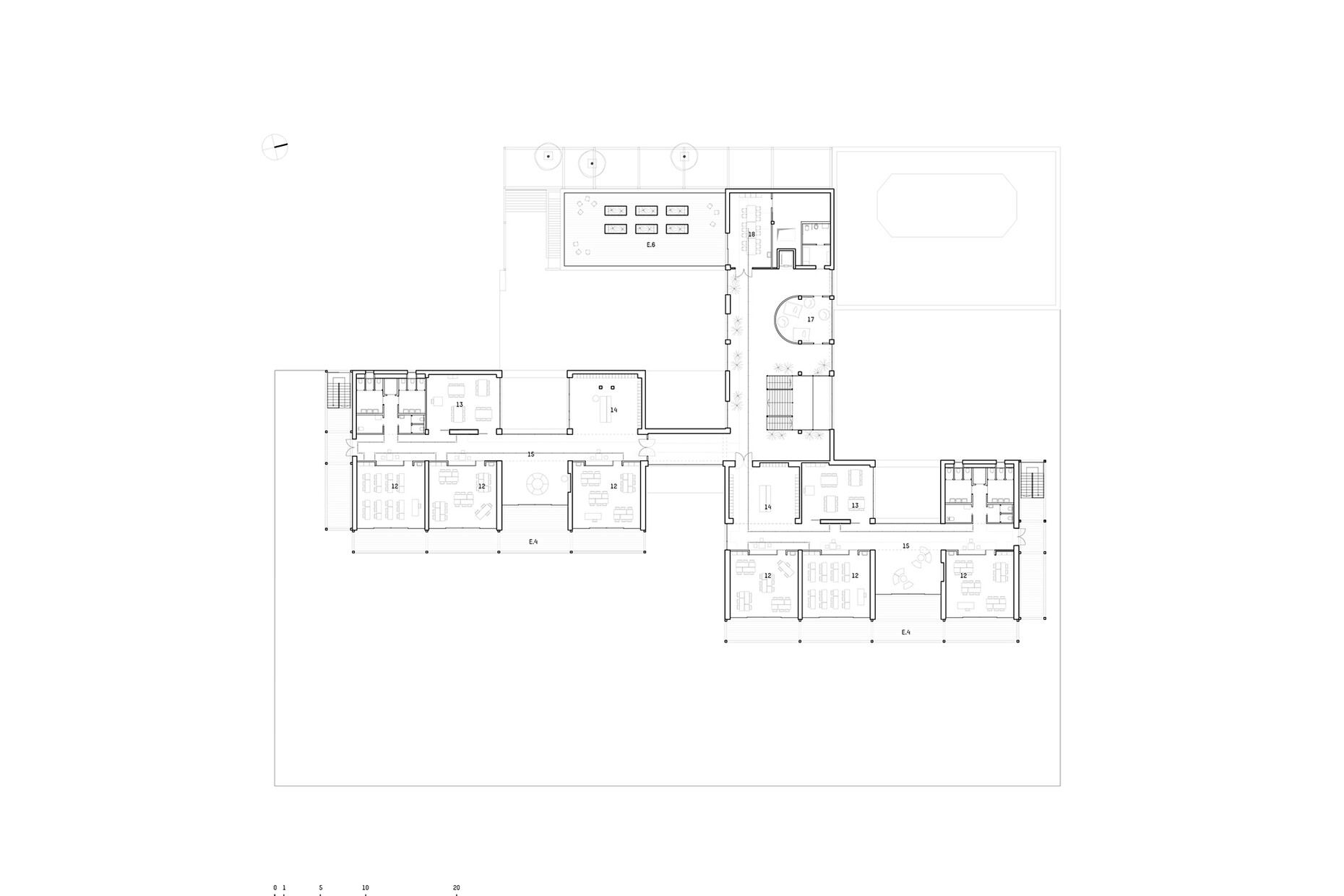
Beim räumlichen Konzept arbeiteten die ArchitektInnen mit einer Cluster-Anordnung und durchbrachen die vorhandene Flurtypologie. Im Anschluss verteilten sie offene Lernbereiche und einzelne Cluster mit jeweils vier Klassenzimmern, einem gemeinsamen Lernraum, einer Garderobe und Toiletten auf das Gebäude. Als vertikales Verbindungselement dient ein offenes Treppenhaus, das gestalterisch die Struktur der Fassade aufgreift und als plastische Skulptur Teil der Lernlandschaft wird. Um dem Anspruch einer Anbindung an die Nachbarschaft gerecht zu werden, wurden zusätzliche Funktionen wie Mensa, Bibliothek, Sporthalle und Auditorium im Erdgeschoss untergebracht, die nun teilweise von verschiedenen Vereinen genutzt werden können. Dafür ordneten Alberto Bottero und Simona Della Rocca auch einen neuen Haupteingang auf der ursprünglichen Rückseite des Gebäudes an, der sich mit seinen neu gestalteten Außenanlagen nun zum Quartier öffnet.
Neben der konsequenten räumlichen Ausformulierung des pädagogischen Konzepts liegt die Stärke des Entwurfs auch in der gelungenen Gestaltung der Schule. Dafür orientierten sich die ArchitektInnen an der Farbgebung der Nachbargebäude und versahen das Stahlbeton-Tragwerk mit einem körnigen altrosafarbenen Putz, der dem Gebäude eine zusätzliche Plastizität verleiht. Auch die Möblierung folgt dem Farbkonzept, wobei Alberto Bottero und Simona Della Rocca Teile des Mobiliars selbst entwarfen. Diese heben sich zusammen mit dem in roter Farbe gehaltenen Treppenhaus als prägnante Farbtupfer von den weißen Wänden und hellen Linoleumböden der Innenräume ab. Hinzu kommen Vorhänge, mit denen die jeweiligen Bereiche flexibel zoniert werden können. Dass der Zeitraum für die Sanierung unter einem Jahr betrug, verdeutlicht umso mehr, dass es sich dabei um eine gelungene Fallstudie handelt – nicht zuletzt wurde die Enrico-Fermi-Schule auch für den Mies-van-der-Rohe-Award 2022 nominiert. Bleibt zu hoffen, dass sie als Pilotprojekt einen Auftakt bildet, dem weitere gelungene Schulsanierungen folgen werden.



































