Poetry of light
Houseboats and floating homes differ fundamentally in that the former are defined as self-propelled, powered watercraft and are able to manoeuvre under their own power. A floating home, on the other hand, is permanently moored in one place and has no self-propulsion. The history surrounding floating homes on Lake Union in Seattle dates back to the 1920s. At that time, they were mainly inhabited by fishermen and boat builders. In the 1930s, houseboats provided cheap housing for those living through the Great Depression. Over time, however, it became fashionable to own a floating home and gentrification occurred, driven by the bohemians. To this day, the story of houseboats and floating homes on Lake Union is one of high waves: architectural innovations played as much a role as political and social aspects. In 2019, a cap was finally placed on 560 floating homes in all of Seattle - so if you're currently a proud owner, you can consider yourself quite lucky. New water houses are currently no longer approved, but those who are lucky are allowed to renovate an existing one. And that was the task for designer Suzanne Stefan and Drew Shawver, partner at Studio DIAA.
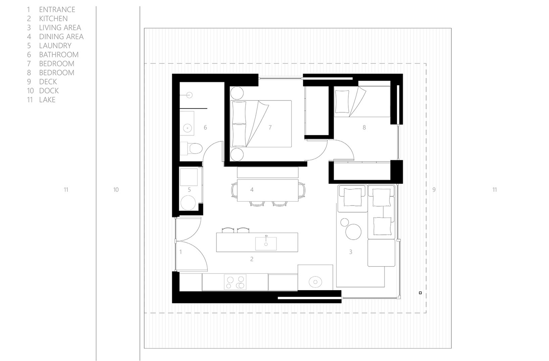
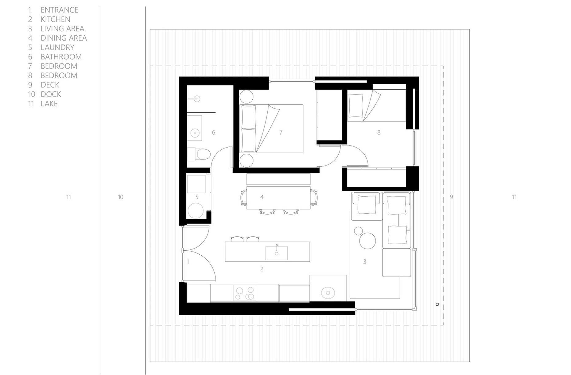
No wonder that the local studio DIAA, which was only founded in 2019, was happy to take on this unique task. Both architects appreciate natural landscapes and untainted natural spaces. Their goal is to create site-specific architecture that learns from its surroundings to create a comprehensive experience space. Consequently, "DIAA" stands for Design, Interiors, Architecture and Atmosphere, with the last "A" for Atmosphere being the most important letter in the eyes of the creative team. The demands on the design of the "Portage Bay Float Home" were accordingly high. The result is an ultra-modern house that collects and reflects the incoming light by means of generously proportioned glass doors and skylights. In this way, the 60 square metres appear open and spacious. Based on the specifications of Seattle's shoreline development, the new house is founded on the historic floating support structure, which was timbered at the beginning of the 20th century from wooden beams up to 1.5 metres long. An equally wide deck of cedar runs once around the entire house. Generous openings allow the interior and exterior spaces to visually merge, making the compact footprint seem more spacious. Right next door, there is even a floating "guest house": a Swedish sailing boat – built in 1985 – that is firmly moored and waiting for its urgently needed refurbishment.
The core aspect of the design lies in the effort to capture the poetic quality of the light reflected from the surrounding water. The whitewashed oak floor and the equally whitewashed pine walls inside add even more power and depth to the diffused light from the northwest. Shades of black and faded silver, on the other hand, imitate the colours of the trees in the adjacent lush vegetation in the outdoor area and on the terrace. The deliberate play with contrasts between the dark outer skin and the rather soft, light interiors evokes the impression of a sensitive airiness – perfect for such a floating house.































