Harte Schale, weicher Kern
Es tut sich was in London: Nachdem die Stadtbezirke zu Beginn der 1980er-Jahre ihre Bautätigkeit im Bereich des bezahlbaren Wohnens komplett einstellen mussten, werden nun mehr und mehr Projekte verwirklicht, die einer sozialen Agenda folgen. Beispiele dafür sind die Stadtbezirke Hackney und Brent mit ihren Wohnungsbauprogrammen, bei denen auch architektonisch ambitionierte Projekte wie die Aikin Terrace von Stephen Taylor Architects und Ely Court von Alison Brooks Architects umgesetzt werden konnten. Neu hinzugekommen ist nun das sogenannte "House For Artists" im Stadtbezirk Barking and Dagenham – ein fünfgeschossiger Bau mit Wohnräumen für zwölf KünstlerInnen, in dem auf insgesamt 1553 Quadratmetern zudem noch Ateliers und ein Gemeinschaftsraum untergebracht wurden. Hinter dem Projekt steht Create London, eine Kunstorganisation, die sich zum Ziel gesetzt hat, soziale und kulturelle Infrastrukturen in Zusammenarbeit mit Kreativen und der Nachbarschaft zu realisieren. Kunst und Kultur sollen so als Teil des öffentlichen Lebens in den jeweiligen Stadtbezirken implementiert werden, weshalb Create London im Vorfeld mit dem London Borough of Barking and Dagenham zusammenarbeitete, die das Projekt teilweise finanzierten.
Nach einem Wettbewerb, den das junge Londoner Architekturbüro Apparata 2016 für sich entscheiden konnte, wurde das "House For Artists" 2021 schließlich fertiggestellt. "Dieser neue architektonische Meilenstein in Barking and Dagenham verdeutlicht das Engagement der Stadtverwaltung, langfristig zugängliche Kunstprogramme für die Nachbarschaft zu unterstützen", sagt Diana Ibáñez López, leitende Kuratorin bei Create London, über das Projekt. Allerdings ist der Ort kein einfacher: so hatte der im Nordosten gelegene Stadtbezirk laut Homepage des London Borough of Barking and Dagenham im Jahr 2019 den höchsten "IMD-Score" (Indices of multiple deprivation) in London, ein Datensatz, anhand dessen die soziale Benachteiligung gemessen wird. Und auch städtebaulich weist das Umfeld eine heterogene Struktur mit Wohnzeilen, Wohntürmen, Reihenhäusern und Wohnanlagen auf, die scheinbar zusammenhanglos aufeinandertreffen. Eine mehrspurige Straße im Norden, Süden und Westen umschließt das Areal. Hinzu kommen die im Osten oberirdisch verlegten Gleise der U-Bahn. Apparata reagierten auf das Vorgefundene mit einen robusten Stadtbaustein – ein neobrutalistischer Bau, der versucht über die Geometrie seiner skulptural geformten Betonfassade an den Bestand anzudocken. Die großzügig verglasten Ateliers im Erdgeschoss, die auch einen flexibel bespielbaren öffentlichen Gemeinschaftsraum umfassen, wirken in den Stadtraum hinein und sollen sich so mit der Nachbarschaft verknüpfen.
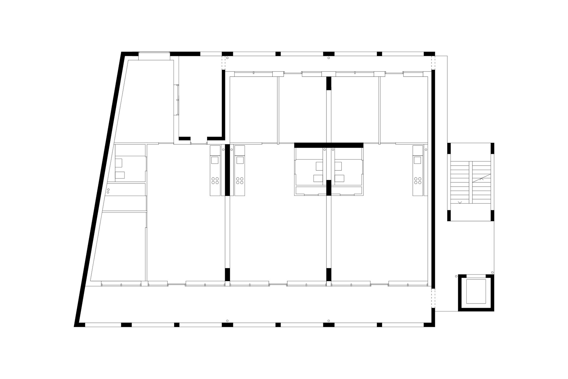
Die oberen vier Geschosse werden über einen Erschließungskern mit einer zweiläufigen Treppe und einem Fahrstuhl erreicht, der im Nordosten an das Gebäude andockt. Von dort gelangt man auf einen Laubengang im Südosten, der zu den jeweiligen Wohnungen führt und gleichzeitig als Gemeinschaftszone dient. Den Wohnräumen ist ebenfalls ein Gemeinschaftsgedanke eingeschrieben, wie Astrid Smitham, Partnerin bei Apparata, erklärt: "Der Entwurf von Wohnungen basiert immer noch weitgehend auf der Kernfamilie, obwohl dieses Modell nicht die vielfältigen Lebensformen heutiger Menschen widerspiegelt. Es werden deshalb neue Formen benötigt: die Möglichkeit, dass ein älterer Elternteil vorübergehend bei einem wohnt, dass man sich die Kinderbetreuung mit einem anderen Haushalt teilt oder eine Verbindung mit den Nachbarn aufbaut." Entsprechend flexibel sind die einzelnen Einheiten konzipiert, die eine Art weichen Kern innerhalb der monolithischen Gebäudehülle darstellen und durch Doppeltüren in den Wohnungstrennwänden vielfältig zonierbar sind. Die Schlafzimmer befinden sich auf der Nordwest-Seite und öffnen sich zu einem schmalen durchlaufenden Balkon, während die Küche und das Badezimmer im Zentrum der jeweiligen Wohnung angeordnet sind.
Gestalterisch verweist die brutalistischen Ästhetik des Baus auf die britische Nachkriegsarchitektur mit ihren Sozialbauten, weshalb er auch als Referenz an einen Wohlfahrtstaat gelesen werden kann, der in der Thatcher-Ära sein Ende fand. Die monolithische Fassade aus Beton weist aus ökologischer Sicht allerdings ebenfalls in die Vergangenheit, weshalb sich die ArchitektInnen bemühten, bei der Errichtung wenigstens teilweise auf ein nachhaltiges Bauen zu achten. So besteht der Zement zu 50 Prozent aus einem Nebenprodukt der Stahlindustrie. Hinzu kommt eine Schalung, die aus wiederverwendbaren Standardteilen hergestellt wurde. Und zumindest die britischen Standards übertrifft das Gebäude, indem es einen um 20 Prozent geringeren Gesamtkohlenstoffgehalt aufweist, als es das Klimaziel des Royal Institute of British Architects (RIBA) und der Greater London Authority (GLA) für das Jahr 2030 vorgeben. Wie sehr das "House For Artists" dann auch in sozialer Hinsicht ein Gebäude der Zukunft ist, wird sich zeigen.































